Stavební pozemek, obec Bosonohy, ul. Jámy, CP 1928 m2

Stavební pozemek v obci Brno-Bosonohy, který se nachází v okrajové části Brna s dostupností autem z centra Brna od 10 do 20 minut a hromadnou dopravou od 20 do 30 minut na hlavní brněnské nádraží.

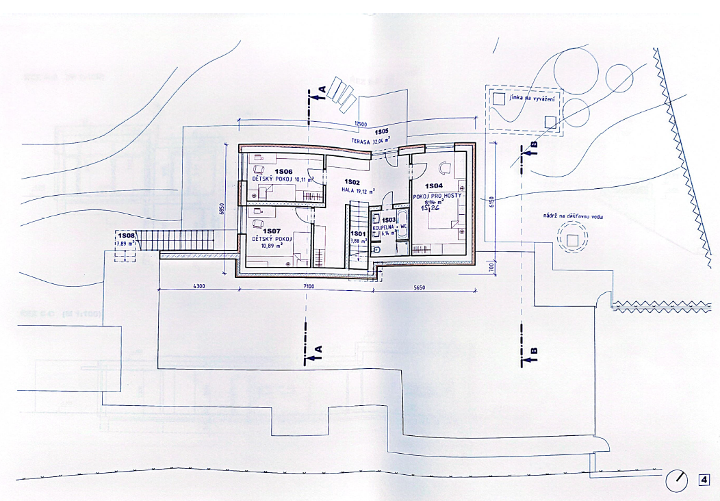
Svažitý pozemek má celkovou plochu 1928 m2, s uliční šířkou 45 m. Dle územního plánu se jedná o plochy předměstského bydlení. Veškeré inženýrské sítě jsou na hranici pozemku. Pozemek je vhodný i pro samostatně stojící dům. Na tento pozemek je vydáno stavební povolení na stavbu rodinného domu 5+kk s garáží pro dvě vozidla a bazén (podrobnější informace k projektové dokumentaci naleznete ve fotodokumentaci a u realitního makléře).

Brno-Bosonohy je malebná oblast na jižním okraji města Brna, která kombinuje klid venkovského života s výhodami blízkosti velkoměsta. Tato čtvrť je obklopena nádhernou přírodou a nabízí řadu rekreačních možností, včetně turistických a cyklistických stezek, které vedou malebnou krajinou. Místní obyvatelé mohou využívat všechny výhody městské infrastruktury, včetně škol, obchodů a služeb, a přitom si užívat klidu a pohody venkovského prostředí.

Bosonohy jsou také dobře spojeny s centrem Brna, což zajišťuje snadný přístup k městským službám a zábavě. Veřejná doprava je dobře organizovaná a poskytuje pravidelné spojení s centrem města. Tato oblast je ideální pro ty, kteří hledají harmonické místo pro život s dokonalou rovnováhou mezi přírodou a městským životem.

 

Více informací u realitního makléře.


Fotogalerie


Poloha


Kupní cena

0

Jaké Vás napadají dotazy?


NÁŠ HYPOTEČNÍ SPECIALISTA

Jan Hökl Bidli

  • Díky naší dlouholeté spolupráci a společným zkušenostem z různých forem realitních transakcí je zajištěná jistota, přesnost předávaných informací a rychlost transakce. 
  • Pro mé klienty jsme společně realizovali již stovky hypotečních úvěrů.
  • V případě, že by vyřízení Vašeho hypotečního úvěru nedopadlo, vrátíme Vám provizi.
  • Porovnání nabídek hypotečních úvěrů napříč hypotečním trhem a hledání nejlepšího řešení pro Vás.
  • Honza Vám připravý finance, tak aby Vám neutekla žádná nemovitost. 

Již od roku 2012 Honza pomáhá klientům s pořízením jejich vysněného bydlení. Není finanční poradce, ale hypoteční specialista, který se zaměřuje na jednu oblast, a to bydlení, a je tak schopen individuálně najít nejjednodušší a nejvýhodnější řešení pro každého. Doporučení od jeho spokojených klientů je tou nejvyšší formou úspěchu a zároveň potvrzení, že dělá věci správně.

ODHAD CENY NEMOVITOSTI ZDARMA

  • Zjistěte, za jakou cenu se prodaly stejné nemovitosti ve Vašem okolí v poslední době.
  • Osobní přístup. Ptejte se na věci, které Vás zajímají v návaznosti na Vaší situaci, bez jakýchkoliv závazků.
  • Odhad není generován automaticky. Důkladně jsou ručně vyhledávány všechny konkrétní informace z realitního trhu, které si můžete kdokoliv ověřit.

CO PRO VÁS MOHU DALŠÍHO UDĚLAT?

Odhad ceny nemovitosti Zdarma

Porovnejte si zdarma Vaší nemovitost s nemovitostmi, které se prodaly v okolí a jsou podobné té Vaší.

Prezentace nemovitosti

Zvyšte cenu Vaší nemovitosti až o 20%, kvalitní přípravou, fotodokumentací a videoprohlídkou. Čím lepší prezentace, tím vyšší odezva a vyšší zisk z prodeje.

Analýza ,,Návaznosti"

Zjistěte Zdarma, za kolik prodáte, za kolik koupíte, jaké poplatky jsou spojené s touto transakcí, na jak dlouho dobu se připravit. Klikněte na ,,Odhad ceny nemovitosti Zdarma" výše a já Vám návaznost v rámci odhadu spočítám.

Videa Dronem

Možnost natočení Vaší nemovitosti pomocí leteckých záběrů.

UKÁZKY PREZENTACE NEMOVITOSTI

  • Až o 15% větší zájem kupujících na inzerci.
  • Větší reakce, více prohlídek, vyšší kupní cena.
  • Pomocí 3D půdorysů ukažte celou dispozici Vaší nemovitosti.
  • Videoprohlídky

REFERENCE

Vážený pane Peterku, byla jsem s Vašimi službami i službami Vaší kolegyně a paní JUDr. Urbancové velmi spokojena. Jednání proběhla korektně a rychle, k mé spokojenosti. Pokud by se mi naskytla příležitost, ráda bych Vaše služby doporučila i mým známým.
Radka Tollarová
Dobrý den, cítíme potřebu Vám poděkovat za uskutečnění prodeje bytu. Od prvního setkání jsme ocenili Vaši profesionalitu, neboť Vaše informace o prodeji byly vyčerpávající a následné Vaše kroky nám značně usnadnily celý prodej i převod nemovitosti. Vše jste zvládl bez naší přítomnosti jen po telefonické domluvě. Chceme též poděkovat za vyklizení bytu, přípravu k nafocení, prezentaci a po prodeji i za převod poplatků za energie na nového majitele. Dodnes v nás zůstává příjemný dojem z našeho kontaktu a proto bychom Vaše služby doporučili dalším klientům.
Hrubý
Dobrý den pane Peterek , velmi bych chtěl poděkovat Vám a Vašemu kolektivu, za profesionální práci při prodeji mého bytu 2+1 v Novém Lískovci. Všechny kroky, které jste prováděli v součinnosti kupujícího a prodávajícího byli vždy korektní, tak aby nedošlo poškození ani jedné ze stran. Postup prodeje od přijetí zakázky, inzerci, výběr klienta, podpis smlouvy, vklad do Katastru nemovitostí, zabezpečení výdeje peněz z úschovy, předání bytu a převodu energií proběhlo bez sebemenších komplikací. Přeji Vám ať přátelský přístup ke klientům Vám vydrží i do budoucna. Byl jsem z Vaší prací velmi spokojen a budu Vás vždy doporučovat.
Jenček