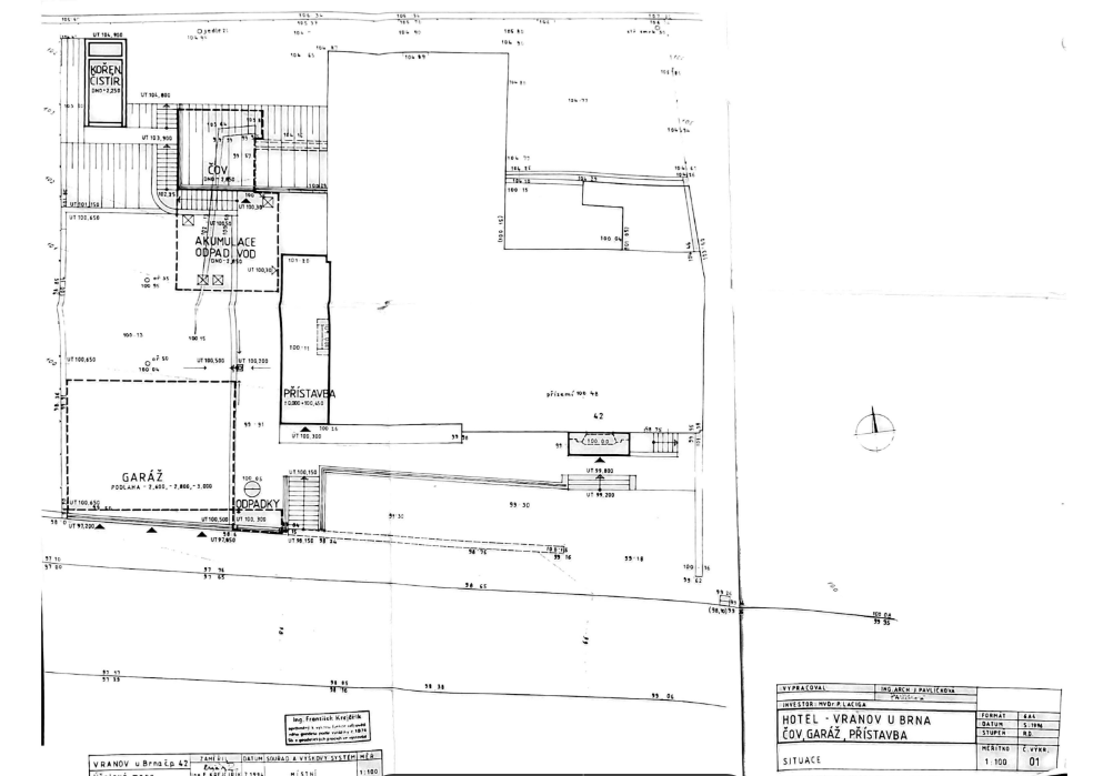
Výnosový dům (penzion) u Brna – možnost přestavby na byty | obecní sítě | 3 garáže + 8 stání
Hledáte investici, kde je možné rozhodovat podle čísel – a zároveň máte v ruce rozvojový potenciál?
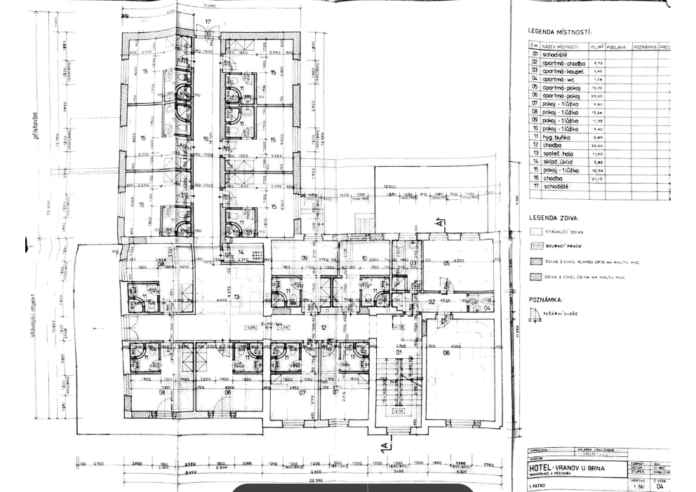
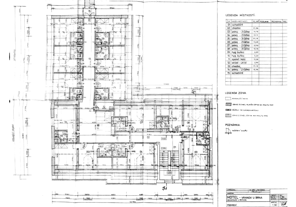
Výnosová nemovitost ve Vranově u Brna s historií ubytování a gastronomie. Obecní voda i kanalizace, vytápění plynem, výborné parkování 3 garáže + 8 parkovacích míst. Zásadní investiční benefit: dle ÚP jde o plochy smíšené obytné (S) – tedy možnost bydlení / bytových jednotek (v rámci regulativů). Díky své dispozici a územnímu plánu vhodný nejen pro pokračování v ubytování, ale i pro přestavbu na bytové jednotky / smíšené využití.
Lokalita – proč je Vranov investičně zajímavý
Vranov u Brna je vyhledávaná lokalita v zázemí Brna, která těží z kombinace:
- rychlé dostupnosti do Brna (poptávka po dojíždění, pracovní pobyty, firemní klientela, víkendové pobyty), 15 km od centra Brna, 20 minut MHD z Lesné
- rekreačního charakteru okolí (turistika, cyklo, příroda – důvod přijet pro krátkodobé ubytování),
- stabilního zázemí obce a navazujících služeb v regionu.
Z pohledu investora je to typ místa, kde se dá pracovat jak s modelem dlouhodobého pronájmu (byty), tak s modelem krátkodobého ubytování/apartmánů, případně jejich kombinací.
Proč to investoři řeší telefonem
- Výnosový charakter
- Územní plán – S (smíšené obytné): umožňuje bydlení i občanskou vybavenost, tedy potenciál „překlopit“ část/celé využití do bytového.
- Sítě bez klasických rizik: obecní voda + obecní kanalizace.
- Vytápění plynem (technické zázemí připravené pro další provoz).
- Parkování jako konkurenční výhoda: 3 garáže + 8 parkovacích míst (celkem 11).
- Dostupnost Brna + rekreační charakter lokality = silná kombinace pro nájemní i ubytovací model.
Zavolejte – během 2 minut zjistíte, jestli to sedí na váš investiční profil.
Po telefonu vám řeknu:
- jak je nastavený provozní model,
- kde se pohybuje výnos,
- jaké jsou možnosti přestavby na byty v rámci regulativů,
- jaké podklady máme připravené a co je ještě v doplnění.
Tahle nabídka je ideální pro investora, který chce mít výnos + možnost dalšího zhodnocení (rekonstrukce, apartmány/byty, optimalizace provozu). Pokud hledáte výnosovou nemovitost u Brna, zavolejte – pošlu vám základní investiční balíček a domluvíme prohlídku.
Dne 16.3.2026 byla podána žádost o předběžnou informaci SÚ o předběžné prověření změny užívání a stavebních úprav stávající budovy na bytový dům.
Roční investiční parametry
Orientační údaje k výnosům a nákladům nemovitosti
Platnost všech nájemních smluv: na dobu určitou do 28. 2. 2027
Kupní cena
Adresa
NÁŠ HYPOTEČNÍ SPECIALISTA
Jan Hökl Bidli
- Díky naší dlouholeté spolupráci a společným zkušenostem z různých forem realitních transakcí je zajištěná jistota, přesnost předávaných informací a rychlost transakce.
- Pro mé klienty jsme společně realizovali již stovky hypotečních úvěrů.
- V případě, že by vyřízení Vašeho hypotečního úvěru nedopadlo, vrátíme Vám provizi.
- Porovnání nabídek hypotečních úvěrů napříč hypotečním trhem a hledání nejlepšího řešení pro Vás.
- Honza Vám připraví finance, tak aby Vám neutekla žádná nemovitost.
Již od roku 2012 Honza pomáhá klientům s pořízením jejich vysněného bydlení. Není finanční poradce, ale hypoteční specialista, který se zaměřuje na jednu oblast, a to bydlení, a je tak schopen individuálně najít nejjednodušší a nejvýhodnější řešení pro každého. Doporučení od jeho spokojených klientů je tou nejvyšší formou úspěchu a zároveň potvrzení, že dělá věci správně.
ODHAD CENY NEMOVITOSTI ZDARMA
- Zjistěte, za jakou cenu se prodaly stejné nemovitosti ve Vašem okolí v poslední době.
- Osobní přístup. Ptejte se na věci, které Vás zajímají v návaznosti na Vaší situaci, bez jakýchkoliv závazků.
- Odhad není generován automaticky. Důkladně jsou ručně vyhledávány všechny konkrétní informace z realitního trhu, které si můžete kdokoliv ověřit.
CO PRO VÁS MOHU DALŠÍHO UDĚLAT?
Odhad ceny nemovitosti Zdarma
Prezentace nemovitosti
Analýza ,,Návaznosti"
Videa Dronem
UKÁZKY PREZENTACE NEMOVITOSTI
- Až o 15% větší zájem kupujících na inzerci.
- Větší reakce, více prohlídek, vyšší kupní cena.
- Pomocí 3D půdorysů ukažte celou dispozici Vaší nemovitosti.
- Videoprohlídky
REFERENCE
ČLÁNKY


















































